top of page

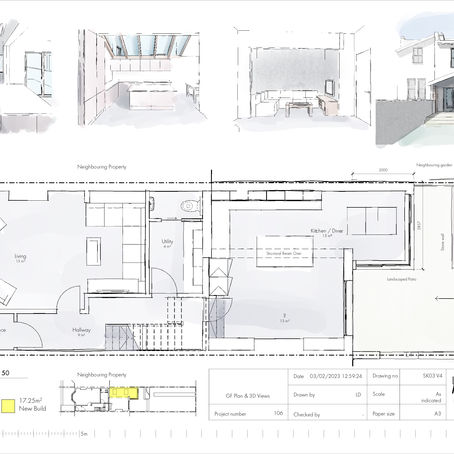
Latest Work

Here is a selection of the most recent projects which are progressing through the design process towards construction. Do click on the images to learn more about the project.

bottom of page